排渣閘閥

產品用途
排渣閘閥適用于火力電站水利系統及水利工程的灰漿排放系統管路上,切斷或接通管路中的介質,適用介質為灰水混合物,渣水混合物
執行標準
設計規范:GB/T 12234
結構長度:GB/T 12221
連接法蘭:JB/T 79
試驗與檢驗:JB/T 9092
壓力-溫度:GB/T 9131
產品標識:GB/T 12220
產品型號
產品性能規范
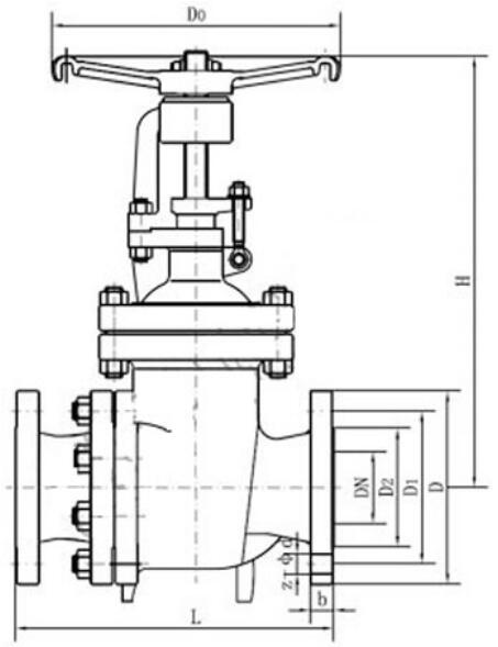
產品主要連接尺寸
結構圖片

排渣閘閥適用于火力電站水利系統及水利工程的灰漿排放系統管路上,切斷或接通管路中的介質,適用介質為灰水混合物,渣水混合物
執行標準
設計規范:GB/T 12234
結構長度:GB/T 12221
連接法蘭:JB/T 79
試驗與檢驗:JB/T 9092
壓力-溫度:GB/T 9131
產品標識:GB/T 12220
產品型號
| 材質 | 型號 | |
| 手動 | 電動 | |
| WCB | PZ41H-16C,PZ41H-25,PZ41H-40,PZ41H-64 | PZ941H-16C,PZ941H-25,PZ941H-40,PZ941H-64 |
產品性能規范
| 公稱壓力(MPa) | |||||
| 殼體強度試驗 | 1 | 1.6 | 2.5 | 4 | 6.4 |
| 密封試驗 | 1.5 | 2.4 | 3.8 | 6 | 9.6 |
| 上密封試驗 | 1.1 | 1.8 | 2.8 | 4.4 | 7 |
| 氣密封試驗 | 1.1 | 1.8 | 2.8 | 4.4 | 7 |
| 適用范圍 | |||||
| 產品類型 | 適用溫度(℃) | 適用介質 | |||
| 碳鋼型 | ≤300 | 灰渣水混合物(灰水比 1:1:5 最大粒度≤50mm) | |||
產品主要連接尺寸
| PN16/PN25 排渣閘閥主要外形尺寸(mm) | |||||||||
| DN | L | D | D1 | D2 | b | z×d | f | H | H1 |
| 50 | 250 | 165 | 102 | 99 | 20 | 4×18 | 3 | 420 | 335 |
| 80 | 280 | 200 | 133 | 132 | 22 | 8×18 | 3 | 615 | 510 |
| 100 | 300 | 220 | 180 | 158 | 24 | 8×18 | 3 | 805 | 685 |
| 150 | 350 | 285 | 240 | 212 | 28 | 8×22 | 3 | 952 | 790 |
| 200 | 400 | 340 | 295 | 268 | 30 | 12×22 | 3 | 1085 | 885 |
| 250 | 450 | 405 | 355 | 320 | 32 | 12×26 | 3 | 1235 | 1015 |
| 300 | 500 | 460 | 410 | 370 | 34 | 12×26 | 4 | 1450 | 1190 |
| 350 | 550 | 520 | 470 | 430 | 38 | 16×26 | 4 | 1640 | 1350 |
| 400 | 600 | 580 | 525 | 482 | 40 | 16×30 | 4 | 1798 | 1460 |
| 450 | 650 | 640 | 585 | 532 | 44 | 21×30 | 4 | 1980 | 1620 |
| 500 | 700 | 715 | 650 | 585 | 46 | 20×33 | 4 | 2190 | 1800 |
| PN40 排渣閘閥主要外形尺寸(mm) | |||||||||
| DN | L | D | D1 | D2 | b | z×d | f | H | H1 |
| 50 | 250 | 165 | 125 | 88 | 20 | 4×18 | 3 | 444 | 340 |
| 80 | 310 | 200 | 160 | 121 | 22 | 8×18 | 3 | 636 | 508 |
| 100 | 350 | 235 | 190 | 150 | 24 | 8×22 | 3.5 | 930 | 680 |
| 150 | 450 | 300 | 250 | 204 | 30 | 8×26 | 3.5 | 984 | 800 |
| 200 | 550 | 375 | 320 | 260 | 38 | 12×30 | 3.5 | 1094 | 875 |
| 250 | 650 | 450 | 382 | 313 | 42 | 12×33 | 3.5 | 1270 | 1010 |
| 300 | 750 | 515 | 450 | 364 | 46 | 16×33 | 3.5 | 1470 | 1180 |
| 350 | 850 | 580 | 510 | 422 | 52 | 16×36 | 4 | 1555 | 1245 |
| 400 | 950 | 660 | 585 | 474 | 58 | 16×39 | 4 | 1650 | 1280 |
| 450 | 4050 | 685 | 610 | 524 | 60 | 20×39 | 4 | 1817 | 1415 |
| 500 | 1150 | 755 | 670 | 576 | 62 | 20×42 | 4 | 1990 | 1560 |
| PN63 排渣閘閥主要外形及結構尺寸(mm) | |||||||||
| DN | L | D | D1 | D2 | b | z×d | f | H | H1 |
| 50 | 250 | 180 | 135 | 88 | 26 | 4×22 | 3 | 444 | 340 |
| 80 | 310 | 215 | 170 | 121 | 30 | 8×22 | 3 | 636 | 508 |
| 100 | 350 | 250 | 200 | 150 | 32 | 8×26 | 3.5 | 830 | 680 |
| 150 | 450 | 345 | 280 | 204 | 38 | 8×33 | 3.5 | 984 | 800 |
| 200 | 550 | 415 | 345 | 260 | 44 | 12×36 | 3.5 | 1094 | 875 |
| 250 | 650 | 470 | 400 | 212 | 48 | 12×36 | 3.5 | 1270 | 1010 |
| 300 | 750 | 530 | 460 | 364 | 54 | 16×36 | 3.5 | 1470 | 1180 |
| 350 | 850 | 600 | 525 | 422 | 60 | 16×39 | 4 | 1555 | - |
| 400 | 950 | 670 | 585 | 474 | 66 | 16×42 | 4 | 1650 | 1280 |
| 450 | 1050 | 715 | 630 | 524 | 70 | 20×42 | 4 | 1817 | 1415 |
| 500 | 1150 | 800 | 705 | 476 | 76 | 20×48 | 4 | 1990 | 1560 |
結構圖片






